Dostępne dogodne opcje finansowania i przedsprzedaży na rok 2026.
Skontaktuj się z nami, aby poznać szczegóły.
📞 FreedomHome – zadzwoń i zapytaj o cenę oraz warunki dostawy.
202501551
202501551
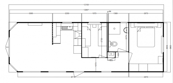
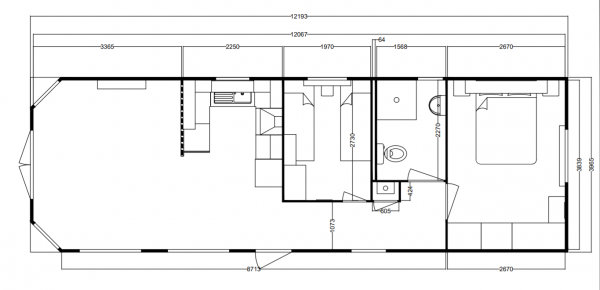
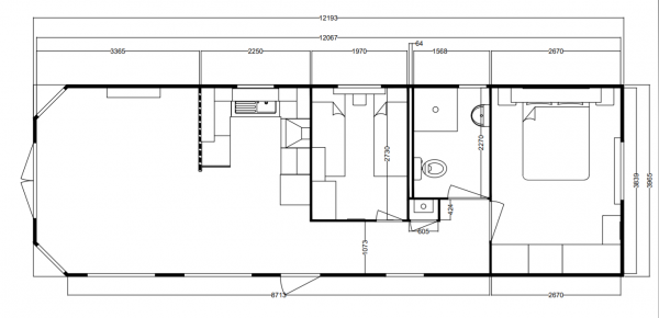
- 12,2 m x 4,1 m
- Podwójne szyby Eco i centralne ogrzewanie gazowe z dodatkową izolacją zimową o grubości 100 mm (pełny pakiet zimowy)
- Dwie przestronne sypialnie dwuosobowe
- W pełni wyposażone we wszystko, co widać na zdjęciach!
- Możliwość wyboru koloru okładziny zewnętrznej z gwarancją do 10 lat
- Standardowo otwierane drzwi francuskie
- W pełni wyposażona kuchnia ze zintegrowaną lodówko-zamrażarką i pralką/suszarką
- Łazienka z umywalką, toaletą, uchwytami i wieszakiem na ręczniki
- Idealne do tymczasowego lub stałego zakwaterowania, aneksu dla gości, wynajmu wakacyjnego i wielu innych zastosowań
Ten model jest przystosowany do wózków inwalidzkich. Jest wyposażony w szersze drzwi zewnętrzne i wewnętrzne oraz profesjonalnie wyposażoną łazienkę z prysznicem!
Możesz również wybrać opcję z wanną lub dużym prysznicem.
- 12 miesięcy gwarancji producenta – z możliwością przedłużenia do 5 lat! Zapytaj nas!
- DARMOWA DOSTAWA na terenie całego kraju!
- Dostawa zorganizowana w dowolne miejsce w Europie lub Wielkiej Brytanii.

Możliwe Finansowanie
Kup domek mobilny na raty – prosto i bez zbędnych formalności
Oblicz raty dla wybranej wartości, transportu, wkładu własnego i oprocentowania.
Znajdź podobny
Dom dla ciebie
-
202501501B
Cena regularna €39.000,00 EURCena regularnaCena jednostkowa / naCena sprzedaży €39.000,00 EUR
1
/
z
9








